Upper Serangoon View
物业类型 |
不详 |
|---|---|
物业状态 |
新建 |
建筑面积 |
不详 |
占地面积 |
不详 |
卧室数量 |
不详 |
房龄 |
不详 |
朝向 |
不详 |
房源详情

项目卖点:
· 地处第10邮区,尊贵地址Leedon Height
· 永久地契项目,而且是超大占地面积的
· 靠近优质洋房GCB住宅区,新加坡等级的别墅
· 马路对面就是新加坡植物园,还有邓普西山的美食休闲区
· 有5栋在新加坡排名首位的南洋小学一公里内(Blk 26、28、30、36、38),学区房
· 名校华侨中学、莱福士女子小学、南洋女子中学、国家初级学院离项目不远
· 采用顶级家用电器,如进口大理石地板、卫浴采用德国的Axor、厨房采用瑞士的VZUG

地理位置极其优越
地处中央核心区第10邮区,毗邻新加坡植物园、邓普西山美食休闲区、荷兰村,驾车只就可以到达乌节路、中央商业区,坐拥名校南洋小学和莱福士女子小学等顶尖学校的教学资源。距离“新加坡版硅谷一”-纬壹科技城(Biopolis)和启汇园(Fusionpolis)咫尺之遥,潜在租客来自这些生物制药研发科技公司。
绿墩雅苑由7座独立的住宅楼组成,共有638套1卧室到四卧室。设计师利用占地面积大的优势,巧妙的利用宽阔的户外空间,让您在小区里就可以有大自然亲密接触,给您带来平和安宁的享受,仿佛置身于度假屋般悠闲愉悦。

稀缺的永久地契和大面积地块
新加坡的住宅类房屋地契分99年、999年、永久地契,主要是以99年地契为主,政府售地只给最多99年地契,所以永久地契属于产品,可以世世代代传承给您的下一代子孙们。房产恒久远,代代永流传,许多人或许都有“一屋代代住”的想法,既盼屋子生财,更求屋子旺子旺孙,代代相传下去。
绿墩雅苑占地面积高达316718平方英尺,接近5个足球场的大小,在新加坡属于难得的永久地契大型地块,大面积意味着园林设计师有更大的空间安排小区绿化公寓配套设施,买公寓不止是房子本身,完善的配套设施给房子加分,该项目的配套设计极为完善,多达33项配套设施

第10邮区向来是高档私宅买家青睐的地区
荷兰村,武吉知马-富人聚集区所在地,周围以新加坡等级的别墅-优质洋房为主(GCB),环境清幽,低密度住宅区,喜欢注重隐私的朋友们最爱的地点之一,靠近世界文化遗产-新加坡植物园和邓普西山Dempsey Hill,距离乌节路购物街只需约车程,到中央商业区CBD、滨海湾约车程。



荷兰村-富人明星们聚集区所在地
可以称作为名副其实的明星地段,很多名人选择定居这一带,比如功夫巨星李连杰早就在武吉知马买了优质洋房、新加坡国宝级歌手孙燕姿、全球知名的投资大师罗杰斯(已经移民定居新加坡)、爱马仕一姐蔡欣颖、房地产大亨、知名企业家和艺人等都选择买这一带优质洋房定居于这一带,到底这一带为什么这么有吸引力呢?周围环境清幽、靠近排名靠前的小学、中学、初级学院是其中原因。

荷兰村风情街转型中,未来升值潜力大
广受本地和外籍人士欢迎的荷兰村,未来将出现集电影院和超级市场于一身的综合发展项目。

上世纪三四十年代,荷兰村是英军及其眷属居住与活动的地方。现在的荷兰村逐渐变身为本地人探索异国美食,享受欧陆风情的好去处。
这里的排屋、餐厅、酒吧都透露着浓浓的小资风情。

在新的规划之下,未来的荷兰村将会是新商场和老店屋无缝衔接,让荷兰村更充满活力。


周围名校云集
靠近小学排名数一数二的南洋小学、莱福士女子小学、圣玛格列中学、南洋女子中学、华侨中学、国家初级学院等,国际学校如英华国际学校ACS International、华中国际学校都在绿墩雅苑附近,一条龙式解决您小孩教育这块的需求。

智能家居走进您生活
发展商配置智能家居系统,每户单位配置智能电子锁,如智能空调控制系统,提高电量使用效率,可以通过视频和来访访客沟通,可以通过应用程序预定公寓配套设施,智能包裹解锁,大户型单位配置智能镜子,除了当镜子用之外,可以变为一个数字触摸屏幕,可以观看您想看视频、浏览想看的网页等等。

仁恒置地和香港置地强强联手
仁恒置地专注于高档住宅项目开发26年,在中国16个高增长城市建立开发高端住宅、商业、办公楼及综合项目,主要在上海、深圳、天津、成都、武汉、苏州、杭州、海口、济南、三亚等城市,香港置地MCL Land作为世界500强的百年企业,深耕房地产行业多年,在新加坡已经开发多个大型公寓项目

漂亮小区图片大放送,供您欣赏!
风景如画,令人陶醉,绿化经过精心打造,呈现一幅
心旷神怡的景象










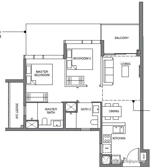
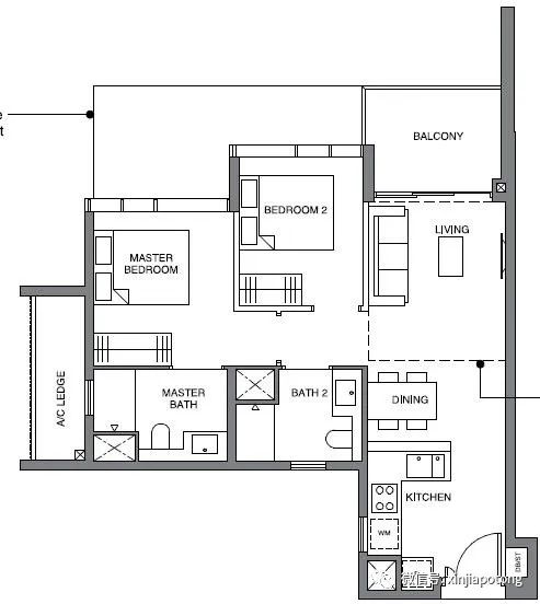
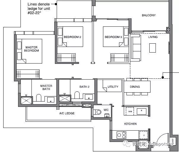
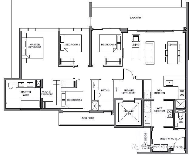
户型图和参考价格:
一卧室,实用面积为44平方米,价格138.4万新币起

一卧室+书房,实用面积为50平方米,价格153.9万新币起

两卧一卫,实用面积为57平方米,价格182万新币起

两卧两卫,实用面积为65平方米,可封闭式厨房(带窗口),价格193.6万新币起

两卧两卫,实用面积为65平方米,可封闭式厨房(带窗口),价格193.6万新币起

两卧室+书房,实用面积为76平方米,可封闭式厨房,价格236.1万新币起

三卧室入门款,实用面积为89平方米,带封闭式厨房,价格281.2万新币起

三卧室优质型,实用面积为97平方米,带封闭式厨房,价格312.3万新币起

四卧室豪华型,实用面积为139平方米,干湿双厨房,私人电梯入户,价格448.7万新币起 (只剩最后5套)


相关配套



物业类型
物业状态
建筑面积
占地面积
卧室数量
房龄
朝向