Upper Serangoon View
物业类型 |
不详 |
|---|---|
物业状态 |
新建 |
建筑面积 |
不详 |
占地面积 |
不详 |
卧室数量 |
不详 |
房龄 |
不详 |
朝向 |
不详 |
房源详情
哪些因素影响新加坡房价的增值?总结为6个因素
1.靠近地铁站,交通便利
通常靠近地铁站项目房产增值的幅度会更大,参加下面图片,从2012-2018年房价上涨数据分析,靠近地铁500米以内最多14.7%,一公里内上涨12.6%。靠近地铁公寓更加容易出租,因为租客一般没有买车,注重交通是否方便,虽然靠近地铁的项目价格比不靠近地铁的项目定价更高,我建议不管您是买来自住还是投资,选择靠近地铁的项目,即使是买来自住的买家也同时以投资的眼光看待。

2.关注政府规划转型的区域
2008年新加坡政府提出把裕廊打造为新加坡第二个中央商业区,带动了裕廊这一带的房价,如2013年火爆开盘的J Gateway, 政府规划哪一带有新的地铁线开通,如汤申-东海岸地铁线、跨岛地铁线等。2019年李显龙总理在国庆群众大会上宣布将大力发展南部濒水区,面积为2000公顷,将重塑为集居住、工作和休闲于一处的濒海新区,2019年9月开盘的南峰雅苑借南部濒水区东风成为9月的销售冠军,这些都是需买房的朋友们关注的。如滨海湾一带大量待开发土地,滨海湾东花园将增开地铁站,周边有可兴建综合发展项目,这里是政府的长期规划,这就是为什么我一直推荐滨海盛景豪苑项目, 该项目2019-2020年在新加坡高端住宅里面销售项目之一。不管在哪个国家,都需要关注政府政策、跟着政府的脚步走。 
.合理的入场价格
如果有个新楼盘和隔壁一个地铁站的新楼盘价格便宜15-20%,自然就会选择入场价格更合理的新楼盘,如果您看到有新楼盘只比附近二手房价格高20%以下,那您就大胆放心进场,假如有个新楼盘开盘价格1500/英尺起,周边二手房的价格1200/英尺,合理的入场价格的房产抗风险能力明显更强,潜在增值空间更大。
4.周边生活配套设施成熟
人都离不开衣食住行,如果公寓项目周边有大型商场对公寓的投资价值大大加分,如东海岸的Parkway Parade、Paya Lebar地铁站的Paya Lebar Quarter(PLQ)、实龙岗的NEX Mall、后港的Hougang Mall、碧山的Junction 9等,有大型超市、咖啡店、食阁、餐馆、银行分行、电影院、图书馆、补习中心等,这些都是人们日常生活中必须常用的配套服务。
5.教育配套成熟,有好学校或国际学校
我们中国人自古以来重视孩子教育,都希望培养孩子成才,古有孟母三迁故事,现有虎妈严父故事,新加坡的华人和新移民同样同样重视孩子教育,所以靠近好学校的房子自然就更加抢手,增值幅度更大,很多父母在怀孕后就开始寻找靠近好小学的房子,记得我孩子1岁多时就开始给提前登记排队幼儿园,我看到有爸妈注册登记比我还动作快。
6.小区规模相对大,公寓配套设施多
如果您有选择的话,我通常推荐买中型或者大型的私人公寓,配套设施更多,家里有孩子的朋友你们懂得,特别是这次的疫情阻断期2个月之后,我预计更多人会买中大型私人公寓和面积更大的房子,大型小区适合楼下遛弯、散步,会有专属的孩子们玩耍区 
项目简介:
悦湖苑(The Florence Residence)是一个99年产权公寓,由9栋18层建筑组成,发展商为龙光地产,占地面积为35882平方米,总共有1410个住宅单位,在新加坡属于大型私人公寓,户型包括有1房、1+书房、2房、2+书房、3房、4房、5房,户型设计都以我们国人喜欢南北朝向为主,预计2023年初交房。
更新:新加坡封城期间,悦湖苑是销量楼盘之一,多达35套,由于样板房不允许开放,买家们都是线上云看房,然后直接定房。买家们的眼睛是雪亮的,销量好肯定是有原因,如项目产品好、价格好等等,下面一一道来。
项目要点:
1.预计2029年开通跨岛线,榜鹅数码科技区,未来潜在增长空间
2.后港中心将建商住公交多用途综合项目,生活更便利
3.低入场价,只需1303/平方英尺起
4.以会所概念为主题,多达128项公寓配套设施,提供礼宾服务等
5.免费提供2年短程巴士直达地铁站服务
6.高效实用的户型设计,没浪费空间
地理位置,悦湖苑位于成熟的高文住宅区,周围美食林立,可步行到高文地铁站,步行到后港地铁站,步行到未来2029年开通的跨岛线后港站,只需1个地铁站到实龙港地铁转换站(黄线和紫线地铁)和巴士转换站,距离后港体育中心仅有几步之遥,您可以步行去后港体育中心进行常规体育锻炼,如打跑步、羽毛球、乒乓球、游泳等等,保持健康生活,小区还提供2年免费巴士服务直达地铁站。 
优质教育资源,名校圣婴小学HoLy Innocents’Primary在一公里内,还有新民小学Xin Min Primary , 其中圣婴小学(男女混校)是本地名校,SAP特选学校之一。中学这块有圣婴中学,实龙岗中学,国际学校方面,车程即可到达澳洲国际学校,美国斯坦福国际学校,全面满足您小孩入学方面需求。

完善的公寓配套设施,买私人公寓不止买房子本身,配套设施是否够齐全是重要指标,齐全的配套公寓公寓能帮助房屋增值。悦湖苑主打“俱乐部共管公寓”Club Condo概念,多达12个各具特色的俱乐部,128个匠心打造的公寓配套设施,提供2年免费休闲活动与课程如健身、瑜伽、烹饪、等等,龙岗地产执行董事庄总形容悦湖苑居住生活有如“地中海俱乐部”般,让住户足不出户,也能在公寓内度假。公寓设施如长达80米游泳池、蒸拿室、健身房、网球场、练太极草坪、室外屏幕播放电影、半个篮球场、桌球角、小孩玩耍区、拳击沙袋练习区、烧烤区等等,发展商还提供智能家居配套系统,让现代化科技走入生活,方便住户。

周围商场林立,生活便利,参考下图,只需1站地铁到达东北部最大型商场Nex Mall,步行到后港地铁站的Hougang Mall,3站地铁到碧山地铁Junction9商场,4站地铁到达Paya Lebar Sqaure广场,8站地铁到达克拉码头的新加坡著名的夜生活圈(酒吧,餐馆等),7站地铁达到多美歌的Singapura Plaza商场,8站地铁到达市中心所在地的乌节路购物街。

样板房图片供参考:





户型图介绍和点评:
方正实用为主,利用率高,没浪费面积,巧妙利用空间。
附注:价格以看房时选的单位为准
1房户型,45平方米,484平方英尺,卫生间带双门入口,价格70.6万新币起 
1+书房户型,49平方米,527平方英尺,可改为封闭式厨房,价格79.3万新币起

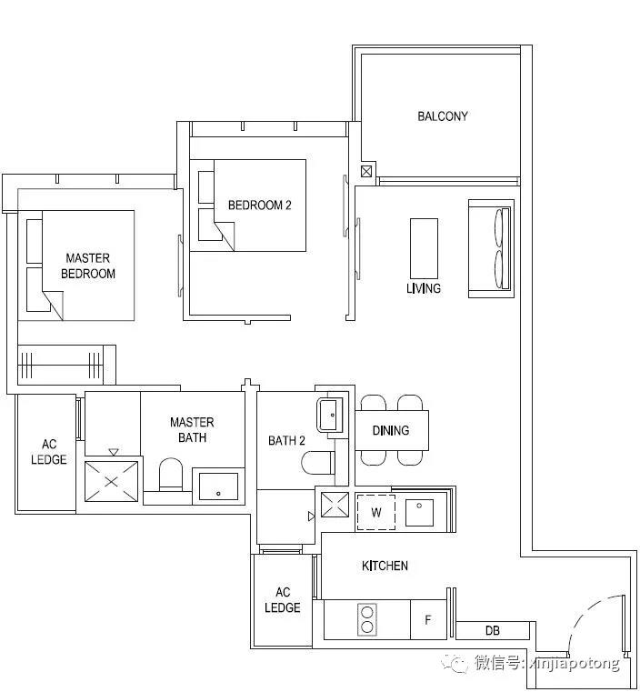
2房户型,59平方米,635平方英尺,哑铃式设计,可改为封闭式厨房,价格91.3万新币起

2房优质户型,62平方米,667平方英尺,带2个卫生间,价格99.8万新币起

2房优质户型,67平方米,721平方英尺,带封闭式厨房,价格105.8万新币起

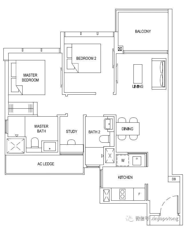
2+书房户型,70平方米,753平方英尺,带封闭式厨房,价格115万新币起(高楼单位)

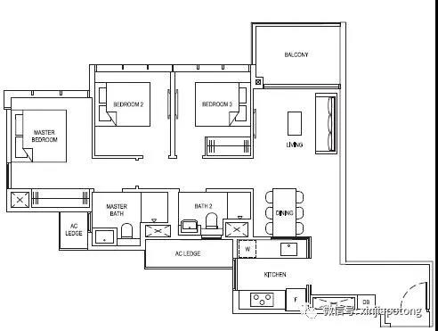
3房户型,87平方米,936平方英尺,带封闭式厨房,价格130.4万新币起,还有面积大点的三房94-95平方米的

3房户型,91平方米,980平方英尺,带封闭式厨房和保姆房,价格140.6万新币起,还有面积大点的三房94-95平方米的

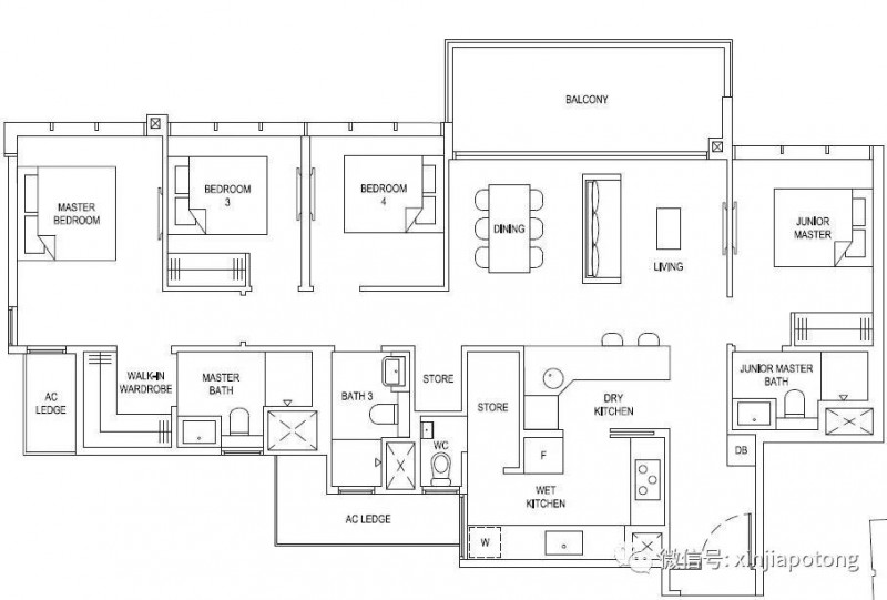
4房户型,119平方米,1281平方英尺,大气横客厅加大阳台,带干湿双厨房(爱做饭的最爱),价格178.6万新币起

4房豪华型,129平方米,1389平方英尺,大气横客厅加大阳台,带干湿双厨房,配大主人房和小主人房,价格192.1万新币起

相关配套










物业类型
物业状态
建筑面积
占地面积
卧室数量
房龄
朝向