Upper Serangoon View
物业类型 |
不详 |
|---|---|
物业状态 |
新建 |
建筑面积 |
不详 |
占地面积 |
不详 |
卧室数量 |
不详 |
房龄 |
不详 |
朝向 |
不详 |
房源详情

楼盘简介
|
发展商 |
城市发展公司CDL和丰隆集团(新加坡著名发展商) |
|
地契 |
永久地契 |
|
楼盘占地面积 |
12127.2平方米,属于中型楼盘 |
|
所处地段 |
地处核心地段,尊贵的第10邮区 |
|
靠近地铁站 |
375米步行约到乌节路地铁站 |
|
预计交房时间 |
2022年12月之前 |
|
户型介绍 |
2+书房122平方米,3房165平方米,4房257-260平方米,4个顶层复式单位527-562平方米 |
|
总单位数 |
限量版154个单位,停车位高达322个 |
|
参考价格 |
2卧室+书房价格445万新币起,3卧室价格593.7万新币起,4卧室1006.3万新币起 *以看房时价格为准 |
地理位置介绍:
铂瑞雅居地处新加坡核心地段-乌节路林荫道,新加坡的三个街道之一,身份的象征,尊贵的第10邮区,背靠瑞吉酒店ST Regis Hotel,步行可以到乌节路地铁站,步行到新建中的Orchard Boulevard地铁站(预计2021年开通),车程可到被列为世界文化遗产的“新加坡植物园”。由2栋28层单位组成,限量版154个豪宅单位, 紧邻著名的瑞吉酒店 (ST Regis Hotel)和四季酒店(Four Season Hotel)。
第9邮区和第10邮区是新加坡本地著名企业家、商人、政治人物(如总理级、部长级、国会议员等)、科技业和金融业巨头喜欢定居的地段,如脸书Facebook创办人之一萨维林、阿里巴巴创始人之一孙彤宇、金融大鳄罗杰斯移民定居新加坡,也是明星们喜欢扎堆住的地段,如功夫巨星成龙、李连杰、甄子丹、赵薇、章子怡、周华健、张柏芝、新加坡当地艺人如林俊杰、范文芳、孙燕姿等。

毗邻世界十大购物街之一乌节路,商场包括Ion Orchard、百丽宫、义安城、威士玛、董厦Tangs、313索美塞等,是一个与巴黎香谢丽舍大道、东京银座、纽约第五大道齐名的购物胜地,什么名牌包包(Channel、Hermes、LV、Prada等),名牌手表,香水,珠宝,名牌服饰等,应有尽有!每年都有来自世界各地的游客来此疯狂购物。靠近美国俱乐部、莱福士俱乐部、东陵俱乐部等,喜欢社交的朋友们可以俱乐部结交新的朋友哦。

负责项目的整体设计的建筑设计师为大名鼎鼎的莫瑟.萨夫迪(Moshe Safdie),新加坡的地标景点滨海湾赌场、金沙酒店也出自他手,还有最近竣工的机场新大楼星耀樟宜(Jewel Changi)也是他设计的,重庆市的新地标-莱福士城广场也是他旗下作品,耗资240亿人民币打造,把公园修到空中。2019年初莫瑟.萨夫迪获得沃尔夫建筑奖,堪称建筑界的诺贝尔奖。



顶层空中设施
顶层位于29层,主打“天际”概念,50米长天际无边游泳池、天际观景台、天际俱乐部、天际健身房、天际温泉浴、天际休闲厅、天际草坪、住户礼宾服务台,可以去顶楼欣赏乌节路美丽景观,还配备两个烧烤台,享受美景和美食两不误

位于顶层的健身房能够让您一边在跑步机上挥洒汗水,一边欣赏城市美景,具有高度私密性的空中俱乐部能够满足公司董事会议、家庭聚餐、节日庆祝等多种需要,是另外一番体验。


名师的设计就是独具匠心,铂瑞雅居的大客厅设计让人感觉宽敞明亮,舒适流畅,加上又是永久地契,属于稀缺资源,经典永恒。总共154个单位,分为4种户型,2卧室+书房、3卧室、4卧室、顶层跃层单位。
顶级用料,奢华舒适体验
格调高雅的铂瑞雅居,建筑与装饰的一切选材,在设计和材料品质方面讲究精益求精,例如意大利的Caccaro衣橱,客厅采用梵高格调来自土耳其的大理石、配有著名卫浴品牌Antonio Lupi、Hansgrohe AXOR Citterio E等浴室配件。厨房选用级的Ernestomeda Icon系列,卧室地板采用美国胡桃木,采用最顶级的用料,只为给您带来奢华、舒适的生活体验。

品牌发展商城市发展公司CDL和丰隆集团
发展商城市发展公司CDL有超过50年的项目开发经验,住宅40000套,项目开发在新加坡、中国、英国、日本、澳洲等,公司旗下有住宅、办公楼、酒店、服务型公寓、商场,在全球拥有130家酒店,是新加坡最大的商业地产持有者。2017年豪宅销量冠军格美华庭(Gramery Park)和2018年豪宅销量冠军银峰(New Futura)都是由城市发展公司CDL开发,丰隆集团为都是由城市发展公司CDL的母公司,旗下开发的豪宅项目如Tate Residence和ST Regis酒店瑞吉居(ST Regis Residence)等等。

乌节路2.0版本,进一步转型升级
2019年1月,市区重建局,新加坡旅游局和国家公园管理局宣布政府将重新打造乌节路购物街,打造区域包括乌节路、东陵、索美塞和多美歌,打造一个更多元化、更多配套设施、更多综合住宅商场项目(Ion@Orchard隔壁地块,待开发,估计到时候价格不菲),乌节路2.0版本对周围住宅项目的住户生活更方便、

智能家居系统,享受科技生活带来的乐趣
项目采用智能家居系统,对于4房户型,可以智能灯光控制,智能空调控制,电子锁,智能语音助手,大门感应器,数码电子锁,可以在回家之前提前通过手机应用程序开好空调,让您回家就感觉凉爽而舒适。

基本户型图介绍:
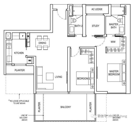
2卧室+书房,122平方米/1313平方英尺,价格456.5万新币起

3卧室户型,165平方米/1776平方英尺,每个房间足够大,户型方正,价格608.3万新币起

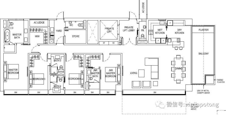
4卧室户型,257平方米/2766平方英尺,国人喜欢的大平层,每个房间足够大,客厅大到可以任性的想踢足球,主卧配超大步入式的衣柜,每个房间配独立卫生间

户型点评:
户型面积配得上豪宅身份,连最小的2卧室+书房户型面积都达122平方米,4卧室面积更是多达257平方米,户型方正实用型,空间利用,四卧室大客厅与大阳台相接,让住户享受宽广的视野,每个房间面积足够大气,配大衣柜。国际建筑大师打造,永久地契,方正的户型格局,值得您拥有!


客户好评及感谢信息






相关配套

物业类型
物业状态
建筑面积
占地面积
卧室数量
房龄
朝向