Upper Serangoon View
物业类型 |
不详 |
|---|---|
物业状态 |
新建 |
建筑面积 |
不详 |
占地面积 |
不详 |
卧室数量 |
不详 |
房龄 |
不详 |
朝向 |
不详 |
房源详情

重大好消息:
发展商现在给8%促销活动,只限到7月底,只限首五套单位,需要尽快行动哦
2+书房 122平方米 价格为369.5万新币起
3卧室 147平方米 价格为449.0万新币起
3+书房 164平方米 价格为485.8万新币起
4卧室 147平方米 价格为702.2万新币起

为什么值得购买?现在的面粉都比面包贵了
参考下图,香港的豪宅发展商太古地a有限公司以地价$2526/平方英尺的价格买入Eden项目所在地块,预计开盘价格要$6000/平方英尺(相当于32.2万/平方米)。澳门赌王旗下的信德集团以$2774/平方英尺通过集体收购买入乌节路商业豪宅区一个地段,光地价就和我们名筑项目的买房价格了,以后开盘价是多少呢,预计开盘价$4500-5000/平方英尺,名筑价格从$2752/平方英尺起,地价比房价还贵,面粉居然比面包还贵,这样您就可以看出名筑项目的价值所在,值得您投资或自住的项目。

基本资料:
著名发展商:城市发展有限公司CDL
地契:永久地契
交房时间:2014年11月(可拎包入住)
占地面积:10414平方米(属于大面积地块)
户型:
2卧室+书房124-143平方米 3卧室147-156平方米
3卧室+书房164-173平方米、4卧室+书房230-310平方米
天际套房 400平方米 顶层复式 564-600平方米
楼层:36层
总单位:154户
停车位: 246个
地理位置优越
名筑项目地处新加坡最黄金地段第10邮区,新加坡顶级豪宅区之一Ardmore Park,大隐于市,闹中取静的环境,身份的象征,两座住宅楼高耸与阿摩园与安徒生路之间,备有八个主题天际露台,塑造独特的外观,周围有世界级的豪华香格里拉酒店、莱福士俱乐部、东陵俱乐部、顶尖的学校、世界文化遗产花园-新加坡植物园。

乌节路购物街是全球十大购物街之一,与纽约第五大道、东京银座、巴黎香榭丽舍大大街齐名购物圣地,商场有Ion Orchard、百丽宫、义安城、威士玛、董厦Tangs、313索美塞等商场,什么名牌包、名牌手表、香水、珠宝、名牌服饰等,应有尽有,超过5000家全球奢侈高档品牌、精致美食,任您选择,每年都有来自世界各地的游客来此疯狂购物。

新加坡政府2019年最新发布的国家发展蓝图中,将全方位升级乌节路区域,把乌节路打造成为集购物、休闲、生活、创新体验为一体的核心商圈。

同周边小区价格对比分析
隔壁的嘉峰云庭Le Nouvel Adrmore平均的尺价为$4151/英尺,面积最小户型352平方米起,所以总价更高,成交的价格介于新币1517万-5100万(请参考下图二数据分析)。
曾经的豪宅标杆项目雅茂园Ardmore Park已经有接近20年的屋龄,现在成交的尺价居然还高达每平方英尺$3100-3467(请参考下图二的数据分析),名筑项目现在有促销活动,每平方英尺2750起的定价是相当有吸引力的,而且是稀缺的永久地契项目,可以传承给您的下一代。


地址彰显身份,和富豪们当邻居
阿摩圆是新加坡最核心顶级豪宅区之一,另外两个是纳森路、乌节路商业中心顶级豪宅区,类似于上海的黄浦江,阿摩园地址就彰显您的身份。这里聚集全球金字塔顶端的富豪们,如阿里巴巴联合创始人之一的孙彤宇、新加坡股票大王Peter Lim拥有一栋楼、脸书Facebook的联合创始人之一萨维林,赵薇夫妇最近以2800万新币买入阿摩园顶层复式单位

优质的豪华家居,品质保证
每个单位都经过精致的内部设计与装潢,让您满意。客厅与饭厅都采用大理石地板,卧室采用橡胶地板,典雅动人。厨房设备齐全,配置德国的美诺Miele高端厨具如冰箱、蒸汽炉、炉具和抽油烟机、咖啡机、洗碗机、酒柜等,让您一展精湛厨艺。
主人房采用大面积透光的玻璃窗户和宽敞的步入式衣柜,让您轻松保管您的衣物。浴室则采用著名品牌的高仪(Grohe)和杜拉维特(Duravit)卫浴精品,让您享受淋浴之乐。

漂亮小区图片大放送:







户型图和参考价格介绍,豪宅大平层设计:
2卧室+书房,124平方米,私人电梯入户,原价401.6万新币起,促销价369.5万新币起

3卧室,147平方米,大主卧,连次卧都可以放两张床,私人电梯入户,价格488万新币起,促销价449万新币起

3卧室+书房,164平方米,私人电梯入户,大客厅,价格537.6万新币起,促销价485.8万新币起

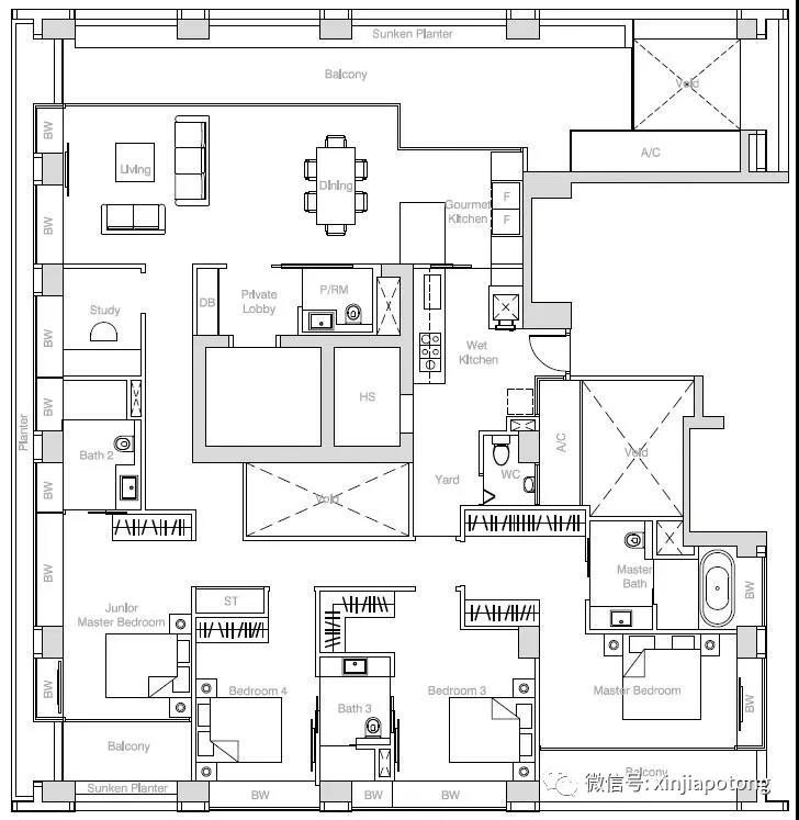
4卧室,230平方米,大客厅配大阳台,私人电梯直接入户,超大主卧室和次卧,价格763.2万新币起,促销价702.2万新币起

4卧室,230平方米,大客厅,配双阳台,私人电梯直接入户,超大主卧室和次卧,价格919.2万新币起

相关配套



物业类型
物业状态
建筑面积
占地面积
卧室数量
房龄
朝向