Upper Serangoon View
物业类型 |
公寓 |
|---|---|
物业状态 |
新建 |
建筑面积 |
不详 |
占地面积 |
不详 |
卧室数量 |
不详 |
房龄 |
不详 |
朝向 |
不详 |
房源详情
圣多美士8号项目介绍

乌节路新项目登场,地处尊贵的第9邮区,中央核心区CCR, 占地面积大,为永久地契项目,靠近River Valley Road那一带,地处闹中取静的市区,步行到达索美赛地铁站(Somerset MRT),还有预计2020年开通的汤申东海岸地铁线的大世界地铁站(Great World MRT), 这条以后开通的汤申地铁线可以直达机场哦。由2栋楼组成,总共250个单位,现在发展商现在开始对外销售,有提供买家延迟付款计划(下面有详细介绍),灵活付款。
最近发展商推出延迟付款计划DPS,协助买家灵活付款,总有一款适合您
买家只需支付首付,就可以拿钥匙入住或者租出去,在12个月或者24个月内,无贷款月供。显著的好处拉长付款的时间线,对买家现金流压力大大降低。
总共有四种付款计划,总有一款符合您需求
第一种叫拎包入住付款方式,当你选定要的房子,买家给1%定金,发展商会给OTP,3周内执行购买权,交19%房款,剩余的80%可以等到24个月后交或者2020年10月30号之前(参考最早的日期)
第二种叫延迟付款计划,买家给1%定金,发展商给OTP,3周内给9%的房款执行购买权,剩余的90%可以等到12个月后或者2019年10月31号前(参考最早的日期),好处是不需要支付政府印花税,可以等再2019年10月31号前再行驶购买权
第三种为预留支付计划,买家给10%定金,房子为您保留着,剩余的90%可以等到12个月后个月后或者2019年10月31号前(参考最早的日期)
第四种为正常付款计划,买家给1%定金,3周内交9%房款执行购买权,执行购买权后12周完成手续,交90%房款(现金+银行贷款)
靠近乌节路购物商圈,如商场义安城,董厦Tangs,Ion @Orchard, Ion@Orchard,ISETAN,威士玛Wisma,乌节路购物街是全球10大购物街之一,喜欢购物的朋友必去之地,也是很多来自国外游客必经之地,什么名牌包包,名牌手表,香水,珠宝,名牌服饰等,应有尽有!
靠近知名的新加坡河畔克拉码头,美食林立,可以白天忙碌工作之余,约朋友去克拉码头的酒吧喝酒放松自己,或者去享受美食,有新加坡当地美食,中国餐、日本餐、韩国餐、西餐、泰国餐等等,海底捞火锅,谭鱼头,珍宝海鲜等等。可以去乌节路的米其林餐厅
凭借极具创意的绿色设施,圣多美士8号获得新加坡建设局BCA所颁发的绿色建筑标准奖,同时在今年的亚洲房地产大奖的颁奖典礼上,获得豪华住宅设计奖,豪华项目奖,豪华室内设计奖,一共三个大奖,这些奖项都是对该项目的肯定。
重点是项目已经交房,不需要等待建房时间,可以办好手续后马上入住哦。
发展商是Bukit Sembawang Pte Ltd,新加坡本地有实力的家族,多年来致力于构建优质住宅,并以卓著声誉广受大众信赖,打造的高档项目包括在乌节路一带巴德申路的PatersonSuites,Paterson Collection,新加坡最贵的住宅项目之一TheMarq@Paterson 就在巴德申路上,还有The Vermont @ Cairnhill,还有参与有地住宅开发。
先来聊聊发展商在乌节路一带买地的价格,2018年4月,发展商SC Global以$2377/平方英尺买入CuscadenRoad占地约5722平方米的地段,SC Global公司主要是开发高档优质项目,预计开盘价格自然会高。如果以发展商要赚10%,估计卖价要$3300/平方英尺,如果发展商要赚20%,预计卖价要$3600/平方英尺,注意该地为99年地契哦。
家里就可以享受漂亮的滨海湾夜景,有没有爽极了!
游泳池景观,独特弧形设计


稀缺的永久地契,值得您长期收藏
项目为永久地契,永久地契,永久地契楼盘,重要事情说三遍,永恒、保值、长长久久。适合买来长期收藏,方便传承财富给您的下一代子女,方便财富的传承,长期来看资产保值。喜欢永久地契的朋友,这项目是您的不二选择。
优质教育资源和俱乐部
新加坡当地名校莱福士女校,立化小学,新加坡女子小学SCGS和英华小学(Baker Road), ISS国际学校,东陵信托国际学校,英华国际学校,华中国际学校,Chatsworth国际学校都离项目不远,幼儿园这块伊顿国际教育Eton House和Pats School,全面满足您孩子教育方面的需求。
周围酒店林立,方便商务接待
五星级的香格里拉酒店,ST Regis瑞吉酒店,四季酒店就在附近,如果您有接待客户方面商务需求的话,可以安排附近的五星级大酒店。或者您有朋友或者亲戚来新加坡旅游的话,方便接待和酒店安排!
周围有东陵俱乐部(有高尔夫课程,餐馆等),美国会所有运动健身(高尔夫,网球等),儿童玩耍区,家人朋友一起品酒聚餐等,世界文化遗产的植物园(遛娃和室外运动好去处),邓普西山上有特色咖啡馆如PS Cafe,海鲜餐馆如珍宝海鲜馆,长堤海鲜馆,享受有高品质的生活方式。

样板房和小区照片供您欣赏




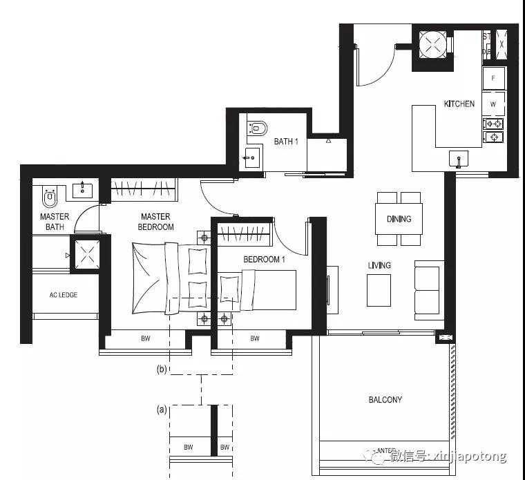
1房,41平方米/441平方英尺,适合单身或情侣住,价格145.7万新币起 
51平方米181.5万新币起

75平方米255.3万新币起

97平方米292.5万新币起

107平方米346.9万新币起

4房,/1755平方英尺,私人电梯直接入户,价格为买卖房产是专业的事情,专业的事情找专业的经纪做。
感谢各位客户朋友的支持,本人在公司多次获得顶级销售奖,提供诚意十足,细心周到的为客户服务,所以收到客户们的广泛好评,服务好任何客户是我的最重要原则,欢迎买家或卖家联系
相关配套



物业类型
物业状态
建筑面积
占地面积
卧室数量
房龄
朝向