Upper Serangoon View
物业类型 |
不详 |
|---|---|
物业状态 |
新建 |
建筑面积 |
72平方米 |
占地面积 |
不详 |
卧室数量 |
2,3,4 |
房龄 |
不详 |
朝向 |
不详 |
房源详情
项目信息介绍:
靠近成熟区女皇镇地铁站(Queenstown MRT),打造2栋44层高,总户数736个单位,预计交房时间为2020年上半年.

地理位置优越,请参考下图,只需1站地铁就可到达红山地铁,2站地铁到达中巴鲁/波那维斯达,3站地铁到达One North地铁站(商业办公区聚集地),3站地铁到达荷兰村地铁站(很多美食,酒吧,咖啡店聚集地段),4站地铁达到中央商业区/CBD,5站地铁到达裕廊东地铁/裕廊湖畔商业区(商场包括JEM,Westgate,IMM,Jcube,Big Box Mega Mall等)
来介绍一下女皇镇地点.女皇镇所在的位置优越,靠近市中心乌节路,滨海湾中央商业区,搭乘地铁。是新加坡打造第一个政府组屋区,生活配套设施成熟,连女皇镇一带的组屋转售价格在整个新加坡算高的,有新闻报道政府组屋转售破百万新币的价格,补充一下,新加坡的政府组屋相当于国内经济适用房,只有符合购买条件才可以买。
这一带的组屋一直都是新加坡最贵的地点之一,不少组屋的屋龄超过20年,价格卖得高,可见其地理位置的优越性,参考下图资料,1974年的组屋成交价格高达98.5万新币.

小孩教育这块,周围的学校有包括女皇镇小学,亚历山大小学,GanEng Seng小学,新镇小学,Cresecent Girls’s小学,武吉美拉中学,女皇镇中学,INSEAD 学校排名第一的MBA工商管理课程,私立学校MDIS等
靠近的商场有凯德旗下的大型商场TheStar Vista,开车就可前往宜家/Ikea购物,车程即可到邓普西洋房别墅区享受有特色的美食,酒吧喝酒消闲.

开车前往One North科学园区,Fushionpolis,Biopolis,Mediapolis(新传媒所在地),车程到达新加坡国立大学和新加坡科技园/SciencePark,Spring Singapore也在那里,潜在的稳定租客来源包括研发专业人士,学生等,别忘了还有在CBD/中央商业区上班的专业人士,是投资者的好选择.
让我来详细介绍下One North科技园区,Biopolis办公楼已经成为研发中心的地标,主要是生物制药科技这块,总建筑面积多达240万平方英尺/24万平方米,著名医药公司如Abbott,GlaxoSmithline,Lily,Novatis,Schering-Plough和Takeha的研发基地就在这里,办公楼楼下就有咖啡店,店铺等配套设施,让在这里的员工可以享受工作,居住,玩乐一起,Fusionopolis是第一个在One North一带推行“工作,居住,玩乐一起理念”的,主要是资讯科技的研发中心,A*Star实验室有多达1500专业的科技研发人员在这里工作,包括资讯科技,资料存储,微电子等.Mediapolis办公楼是为国际市场提供顶级质量的数字传媒。

完善的公寓设施,项目提供多达77公寓配套设施,一般项目低于50项公寓设施,分别在第1层,7层,27层。除了标准的游泳池,蒸汽房,空中健身房,烧烤区,还提供阅读室,休息室,瑜伽区,品茶吧台,开放式草坪,举办活动草坪,水中健身器材,空中聚餐区,室外健身角,下棋区等.(实在太多,请参考下图



项目图片大放送



样板房照片:





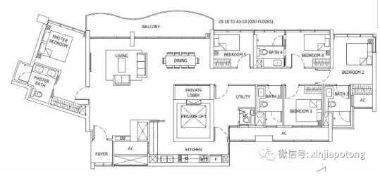
户型图介绍:
2房户型,72平方米/775平方英尺,开放式厨房,对2房面积来说这户型面积够大,弧线阳台设计,灵感来自天然大理石的花纹.价格新币130.9万起

2房户型,75平方米/807平方英尺,自带私人电梯直接入户哦,价格131.2万新币起,数量有限!!!

3房户型,75平方米/807平方英尺,20楼以上的高楼单位价格新币147.9万起,享受漂亮景观.(3房共有8总不同户型,看房时可以了解更多)


4房户型,140平方米/1507平方英尺,尊贵象征的私人电梯直接入户,价格新币235.6万起

5房户型186平方米/2002平方英尺,价格等看房时咨询
若您对新加坡任何房产感兴趣,请免费咨询我们的特约房产经纪人张琼/Linda,开发商直接代理销售团队,买公寓无任何中介费用,协助客户办理买房银行贷款,买房产业托管一条龙服务。
如果您喜欢这边文章,请分享在你的朋友圈或转发您需要的朋友,谢谢!
房产作者介绍张琼(Linda),新加坡最大房产经纪公司Huttons市场部高级董事,拥有丰富的房产行业经验,已入行热爱的房地产行业约8年.全心全意为客户考虑,致力于协助国人新加坡置业,秉着细心周到的服务态度,以客户利益为出发点,诚信待人。服务过数百位中高档客户,广受客户们好评。包括企业家,企业高管,中小型公司老板,新移民,房地产发展商老板等等。
一个电话过来就了解全岛各地段的项目,总有一款适合您!不跟买家收取中介费,专车接送看房,公司代理全岛各地项目
为什么选择我?本人对市场项目很熟悉,可以更加专业帮您找到适合的单位,节省你看房所需花的时间,可以带您看全岛各地的项目,只选适合您的好项目.
协助您办理银行贷款(外国人可贷款),房屋推荐,律师咨询等,值得客户信赖的房屋经纪人。
总以专业的眼光推荐适合客户需求的房屋项目,始终客户优先.
欢迎需要买房或者卖房的朋友添加我的微信号(扫描以下二维码)

相关配套
地图周边



物业类型
物业状态
建筑面积
占地面积
卧室数量
房龄
朝向