Upper Serangoon View
物业类型 |
别墅 |
|---|---|
物业状态 |
二手 |
建筑面积 |
不详 |
占地面积 |
656平方米 |
卧室数量 |
3 |
房龄 |
不详 |
朝向 |
不详 |
房源详情
核心地段·名校环绕·潜力无限
26 DELMORE CRESCENT, GLEN WAVERLEY
坐落在一条宁静的 crescent 街上,四周环绕着宏伟而尊贵的法式庄园宅邸,此处非凡机遇为您提供了建造梦想家园(需获市政厅批准)或把现有住宅改造为宽敞舒适的家庭避风港的绝佳环境。
该房产位于备受追捧的格伦韦弗利中学学区之内,仅凭地段优势,就使其成为注重子女教育与长期资产增值的家庭的瞩目投资之选。
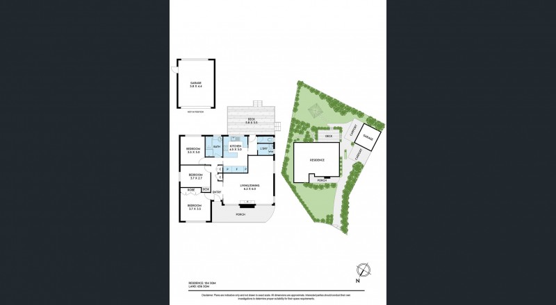
穿过传统的砖砌立面,室内是采光充足的天地。住宅设有三间比例匀称的卧室、宽敞的客厅与用餐区,以及配备充裕台面和橱柜空间的实用厨房。一间中央浴室满足全家所需,为成长型家庭提供了实用的居住空间。
物业坐拥约656平方米的宽阔地块,前后院均带有精心培育的成熟花园,栽种了多棵果树。宽敞的有顶露天娱乐区俯瞰后院,是您招待宾朋、举办周末烧烤或与亲友惬意聚会的完美场所。
爱车人士及手工艺爱好者将欣赏这里配备的单车库及额外的两个车棚,提供了极佳的车辆停放空间及用作工作间的潜力。
此地址仅距The Glen购物中心、公共交通、Blackburn Road沿线的餐厅及优质学府咫尺之遥,集便利、优越生活与强劲未来潜力于一身。
在这个惜售的区域内,机遇难逢。
切勿错失良机——欢迎今日致电咨询!
拍卖时间:2026年3月28日 星期六 上午11:00
格伦代尔小学:0.63公里
伯伍德东小学:0.68公里
圣克里斯托弗学校:0.69公里
芒特韦弗利北小学:1.02公里
卫斯理学院 - 格伦韦弗利校区:1.10公里
卫斯理学院格伦韦弗利校区:1.14公里
SEDA 学院(维多利亚)- 篮球伯伍德:1.43公里
格伦韦弗利中学:1.58公里
亨廷顿学校:1.88公里









.jpg)
相关配套
房产特色
土地面积:656平方米
嵌入式衣柜
厕所:1
车棚车位:2
车库车位:1
安全停车
逆循环空调报警系统



物业类型
物业状态
建筑面积
占地面积
卧室数量
房龄
朝向